Haus Sta
Projekt Beschreibung
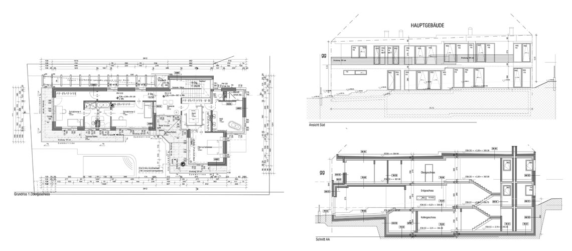
Entwurf und Einreichung eines neuen Gebäudes im Bereich Wienerwald. Das Haus eines Steinmetzes.
Vorgabe war ein sehr schmales und langgezogenes Grundstück mit unmittelbar gelegenen Nachbarn und toller Fernsicht in Richtung Süden. Auf diese Gegebenheiten wurde mit dem Entwurf reagiert. Schaffung von Aussichten ohne Einsicht zu gewähren (Rücksprünge, Sichtschutz) Schaffung von Rückzugsmöglichkeiten.
